STAFF BLOG
スタッフブログ
2025.11.06 ー 建築のこと
吹抜け照明の付け方
Yumiko Ota

高いところから吊り下げる高さ違いのペンダントライト、
私たちの設計では気を付けるポイントが4つあります。
①明るさ(照明器具なので当然ですが)
②掃除の容易さ(手が届く位置に配置する)
③風や地震で照明器具同士がぶつからない位置
④見た目が素敵!
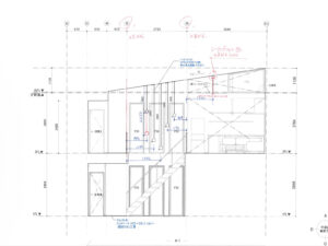
以上を図面に落とし込んで検討しています。
こんな感じで検討してます!

STAFF BLOG
スタッフブログ
2025.11.06 ー 建築のこと
Yumiko Ota

高いところから吊り下げる高さ違いのペンダントライト、
私たちの設計では気を付けるポイントが4つあります。
①明るさ(照明器具なので当然ですが)
②掃除の容易さ(手が届く位置に配置する)
③風や地震で照明器具同士がぶつからない位置
④見た目が素敵!
以上を図面に落とし込んで検討しています。
こんな感じで検討してます!
